Thiết kế văn phòng 50m2: 5 phong cách hot 2026 & báo giá chi tiết
Với 50m², doanh nghiệp vẫn có thể kiến tạo một văn phòng làm việc chuyên nghiệp và đẳng cấp. Nhiều doanh nghiệp vừa và nhỏ, các công ty khởi nghiệp hay văn phòng đại diện đang ưu tiên lựa chọn diện tích 50m² nhờ ưu thế về chi phí thuê hợp lý, vị trí linh hoạt và khả năng xây dựng một môi trường làm việc bài bản. Bài viết này sẽ tập trung giải đáp ba khía cạnh cốt lõi khi thiết kế văn phòng 50m2, bao gồm: khả năng bố trí nhân sự, lựa chọn phong cách thiết kế, và dự toán chi phí thi công thực tế.
Contents
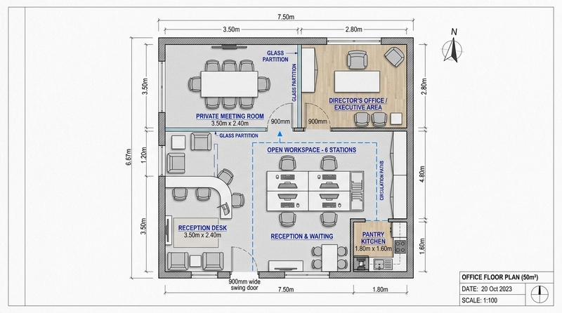
1. Văn phòng 50m² bố trí được bao nhiêu người?
Số lượng người cho văn phòng 50m² sẽ phụ thuộc vào cách bạn bố trí không gian. Theo thiết kế văn phòng thực tế tại Việt Nam, sau khi đã trừ đi diện tích lối đi, khu vệ sinh và kho lưu trữ (thường chiếm khoảng 10 – 15m²), phần diện tích làm việc hiệu dụng còn lại vào khoảng 35 – 40m². Với không gian đó, một văn phòng 50 m² có thể bố trí từ 8 đến 12 nhân viên một cách thoải mái, đảm bảo đủ lối đi lại và không khí làm việc.




Các phương án bố trí phổ biến:
|
Phương án bố trí |
Số nhân viên |
Đặc điểm nổi bật |
|
Không gian mở hoàn toàn |
12-15 người |
Tối ưu diện tích, cộng tác linh hoạt |
|
Có phòng họp + lễ tân |
8-10 người |
Chuyên nghiệp, phù hợp tiếp khách |
|
Có phòng riêng cho sếp |
6-8 người |
Đảm bảo riêng tư cho cấp quản lý |
Phương án 1: Không gian mở hoàn toàn (Open Space)
Toàn bộ diện tích được dành cho khu vực làm việc chung, không có phòng riêng. Đây là lựa chọn phù hợp với các startup, team sáng tạo, công ty công nghệ trẻ. Với cách bố trí này, văn phòng 50m² có thể chứa từ 12 đến 15 người, sử dụng bàn dài hoặc bàn đôi để tiết kiệm diện tích tối đa.
Phương án 2: Có phòng họp nhỏ và khu lễ tân
Phương án này cân bằng giữa không gian làm việc cá nhân và nhu cầu tiếp khách, họp nhóm. Một phòng họp nhỏ từ 4-6 chỗ và một quầy lễ tân đơn giản sẽ chiếm khoảng 10-12m². Phần còn lại đáp ứng từ 8 đến 10 nhân viên làm việc ổn định.
Phương án 3: Có phòng riêng cho lãnh đạo, sếp
Khi cần không gian riêng tư để giải quyết công việc cấp quản lý, một phòng giám đốc nhỏ (khoảng 8-10m²) kết hợp vách kính ngăn cách sẽ là lựa chọn hợp lý. Với phương án này, không gian làm việc chung chỉ còn phù hợp cho 6 đến 8 nhân viên.


2. 5 Phong cách thiết kế văn phòng 50m² phổ biến nhất 2026
Xu hướng thiết kế văn phòng năm 2026 không chạy theo sự phô trương mà hướng đến sự tinh tế, hiệu quả và mang lại cảm giác dễ chịu lâu dài cho người làm việc trong đó. Dưới đây là 5 phong cách đang được các chủ doanh nghiệp lựa chọn nhiều nhất hiện nay.
2.1. Modern Minimalist – Tối giản hiện đại
Phong cách Modern Minimalist dựa trên nguyên tắc “less is more” – sự đơn giản, tinh giản mang lại hiệu quả, giá trị và sự sang trọng cao hơn là sự thừa thãi, rườm rà. Toàn bộ nội thất được lựa chọn có chủ đích, không có món đồ nào thừa. Bảng màu chủ đạo thường là trắng, xám nhạt, kem hoặc be, kết hợp với các điểm nhấn màu đơn sắc.
Với không gian 50m², phong cách này đặc biệt hiệu quả vì nó tạo ra cảm giác rộng hơn thực tế. Nội thất tích hợp nhiều chức năng, ví dụ như bàn làm việc có ngăn kéo âm, kệ treo tường thay vì tủ đứng, giúp tiết kiệm đáng kể diện tích sàn.



2.2. Industrial – Công nghiệp thô mộc
Industrial là phong cách lấy cảm hứng từ các nhà xưởng cũ của châu Âu. Đặc trưng của phong cách này là tường gạch thô hoặc bê tông trần, ống nước và dây cáp để lộ có chủ đích, đèn Edison dây thừng và nội thất kết hợp gỗ tối màu với khung sắt đen.
Điều thú vị là phong cách Industrial không hề tốn kém như bạn nghĩ. Ở văn phòng 50m², chỉ cần xử lý một hoặc hai mặt tường bằng gạch giả hoặc bê tông giả kết hợp với hệ đèn công nghiệp, bạn đã tạo được bầu không khí đặc trưng mà không cần phá dỡ toàn bộ kết cấu cũ.
Phù hợp với: Agency sáng tạo, studio thiết kế, công ty truyền thông, các thương hiệu trẻ muốn thể hiện cá tính mạnh.




Phong cách Scandinavian mang đến không khí làm việc nhẹ nhàng, ấm áp và rất dễ chịu. Không giống với Minimalist thuần túy, Scandinavian cho phép sử dụng các yếu tố trang trí tự nhiên như cây xanh, vải lanh, gỗ tần bì hay sồi sáng màu. Bảng màu thiên về trắng kem, xám xanh nhạt và be ấm.
Đây là phong cách hiếm hoi tạo được cảm giác “nhà trong văn phòng” – nơi nhân viên thực sự cảm thấy thoải mái khi phải ngồi cả ngày làm việc. Các nghiên cứu về năng suất lao động cũng chỉ ra rằng môi trường làm việc ấm áp, gần gũi thiên nhiên giúp tăng sự tập trung và giảm căng thẳng đáng kể.
Phù hợp với: Công ty giáo dục, chăm sóc sức khỏe, thương hiệu lifestyle, các nhóm làm việc sáng tạo cần môi trường dễ chịu lâu dài.



2.4. Open office hiện đại – Không gian mở thông minh
Open Office không đơn thuần là “bỏ tường ngăn ra” mà là một triết lý thiết kế chú trọng đến sự cộng tác, linh hoạt và giao tiếp nội bộ. Văn phòng 50m² theo phong cách này sử dụng vách ngăn di động, bàn làm việc mô-đun có thể ghép nối hoặc tách rời, cùng các khu vực chức năng được phân chia bằng thảm, ánh sáng hoặc cao độ sàn thay vì tường cứng.
Điểm mạnh lớn nhất của Open Office là khả năng tái cấu hình linh hoạt theo từng giai đoạn phát triển của doanh nghiệp. Hôm nay cần chỗ cho 10 người, tháng sau tăng lên 14 người – bạn chỉ cần điều chỉnh nội thất mà không cần đập tường hay sửa chữa tốn kém.
Phù hợp với: Startup công nghệ, công ty truyền thông, các nhóm làm dự án đòi hỏi giao tiếp liên tục và phối hợp nhanh.


2.5. Corporate nhỏ gọn – Chuyên nghiệp trong diện tích khiêm tốn
Corporate không nhất thiết phải là văn phòng rộng lớn, hoành tráng. Phong cách Corporate nhỏ gọn mang đến diện mạo chuyên nghiệp, bài bản với bảng màu trung tính (xanh navy, xám đậm, trắng), hệ thống nội thất đồng bộ và logo thương hiệu được tích hợp tinh tế vào không gian.
Đây là phong cách lý tưởng cho các văn phòng đại diện, showroom kết hợp làm việc hoặc các doanh nghiệp B2B thường xuyên tiếp đối tác. Ấn tượng đầu tiên với khách hàng là rất quan trọng, và một văn phòng 50m² được thiết kế theo phong cách Corporate bài bản hoàn toàn có thể thể hiện được đẳng cấp thương hiệu.
Phù hợp với: Văn phòng đại diện, công ty bảo hiểm, tài chính, bất động sản, các doanh nghiệp cần hình ảnh chuyên nghiệp khi tiếp đối tác và khách hàng.

3. Nguyên tắc bố trí không gian văn phòng 50m²
Dù bạn chọn phong cách nào, việc tuân thủ các nguyên tắc bố trí cơ bản sẽ quyết định 70% sự thành công của dự án thiết kế. Đây là những kinh nghiệm được Deco Crystal đúc kết qua hàng nghìn dự án thực tế.
3.1. Tận dụng ánh sáng tự nhiên
Với văn phòng 50m², việc tối ưu ánh sáng tự nhiên không chỉ giảm chi phí điện mà còn tạo ra không khí làm việc dễ chịu hơn rõ rệt.
Nguyên tắc cơ bản là bố trí bàn làm việc song song hoặc vuông góc với cửa sổ, không đặt bàn hướng mặt thẳng vào cửa sổ (gây chói) hoặc quay lưng hoàn toàn (thiếu sáng). Nếu văn phòng có ít cửa sổ, hãy sử dụng vách ngăn kính hoặc vách ngăn nửa kính để dẫn ánh sáng từ khu ngoài vào sâu hơn bên trong.
Các bề mặt sáng màu như tường trắng, trần sáng và sàn gỗ nhạt màu cũng có tác dụng phản chiếu và khuếch tán ánh sáng tự nhiên ra toàn bộ không gian.


3.2. Chia vùng chức năng rõ ràng
Một không gian 50m² không có phân vùng rõ ràng sẽ rất nhanh chóng trở nên lộn xộn và gây mất tập trung. Việc chia vùng không nhất thiết phải dùng tường cứng; bạn có thể phân định ranh giới bằng thảm trải sàn, độ cao trần, màu sơn điểm hoặc hệ đèn khác nhau giữa các khu vực.
Các vùng chức năng cần có trong văn phòng 50m² thường gồm: khu lễ tân/tiếp khách, khu làm việc cá nhân, khu họp nhóm và khu lưu trữ. Mỗi vùng cần được định nghĩa rõ ràng ngay từ khâu thiết kế, không nên để các chức năng chồng chéo lên nhau.


3.3. Lưu thông không khí và lối đi
Lối đi trong văn phòng cần đảm bảo tối thiểu 90-120cm cho lối đi chính và 60-80cm cho lối đi phụ giữa các bàn. Đây không chỉ là vấn đề tiện lợi mà còn là yêu cầu về an toàn phòng cháy chữa cháy.
Về thông gió, một văn phòng 50m² với 10-12 người cần hệ thống điều hòa có công suất phù hợp và được bố trí hướng gió hợp lý, tránh thổi trực tiếp vào người ngồi làm việc. Nếu văn phòng có thể mở cửa sổ tự nhiên, hãy tận dụng luồng gió thông giữa hai phía đối diện nhau để giảm phụ thuộc vào máy lạnh trong những ngày thời tiết dễ chịu.

3.4. Tận dụng chiều cao để sắp xếp đồ đạc
Khi diện tích sàn bị hạn chế, chiều cao chính là không gian bạn còn chưa khai thác hết. Kệ treo tường, tủ âm trần, vách kệ từ sàn lên tới trần là những giải pháp phổ biến và hiệu quả nhất.
Một văn phòng 50m² có thể tiết kiệm tới 3-5m² diện tích sàn nếu toàn bộ tài liệu, thiết bị dự phòng và đồ dùng văn phòng được đưa lên cao thay vì để trên sàn hoặc trong các tủ đứng cồng kềnh. Điều này không chỉ tạo cảm giác rộng rãi hơn mà còn giúp không gian trông gọn gàng và ngăn nắp hơn nhiều.



3.5. Sử dụng màu sắc để tăng cảm giác rộng rãi
Thứ nhất, sơn tường màu sáng (trắng, trắng ngà, xám nhạt, xanh lam nhạt) để phản chiếu ánh sáng và tạo cảm giác không gian rộng hơn. Thứ hai, dùng màu tối có chọn lọc – chỉ nên áp dụng cho một mảng tường điểm nhấn duy nhất, không sơn tối toàn bộ. Thứ ba, đồng nhất màu sàn và nội thất để tránh tạo ra sự phân mảnh thị giác làm không gian trông bị chật hơn.
Nếu thương hiệu của bạn có màu sắc đặc trưng, hãy tích hợp chúng một cách tinh tế vào các điểm nhấn như gối sofa, cây xanh, khung ảnh hoặc đường viền trang trí – thay vì sơn toàn bộ tường theo màu thương hiệu.


4. Quy trình thiết kế thi công văn phòng 50m² tại Deco Crystal
Mặc dù 50m² là một diện tích tương đối nhỏ gọn, Deco Crystal (Crystal Design TPL) vẫn áp dụng quy trình thực thi trọn gói chuyên nghiệp và khép kín nhằm tối ưu hóa từng mét vuông, biến không gian nhỏ thành một môi trường làm việc lý tưởng, truyền cảm hứng.
Quy trình thực hiện cho văn phòng 50m² bao gồm các bước sau:
- Bước 1: Tư vấn thiết kế và quy hoạch không gian: Đội ngũ chuyên gia luôn bắt đầu bằng việc lắng nghe và thấu hiểu nhu cầu của doanh nghiệp, bởi sự chân thành là chìa khóa cho mọi kết nối. Với không gian 50m², việc quy hoạch không gian (Space Planning) thông minh là yếu tố then chốt nhất để tạo ra sự thông thoáng.
- Bước 2: Thiết kế nội thất: Các ý tưởng được trực quan hóa thông qua các bản phác thảo và thiết kế 3D. Deco Crystal coi mỗi dự án là một tác phẩm độc bản. Đối với văn phòng nhỏ, thiết kế không chỉ tập trung vào thẩm mỹ mà còn phải tối ưu công năng sử dụng, thân thiện với môi trường và mang lại giá trị bền vững.
- Bước 3: Sản xuất nội thất “may đo”: Khác với các đơn vị phải qua trung gian, Deco Crystal tự chủ hoàn toàn với nhà máy quy mô 5.000m² tại TP.HCM và 1.000m² tại Hà Nội. Hệ thống máy móc sản xuất tiên tiến giúp tạo ra các sản phẩm nội thất với kích thước tùy chỉnh cho văn phòng của bạn, đồng thời đảm bảo chất lượng hoàn hảo và thời gian sản xuất tối ưu.
- Bước 4: Thi công và giám sát: Giai đoạn thi công hiện trường là sự phối hợp nhịp nhàng giữa đội ngũ thiết kế sáng tạo, những người thợ mộc lành nghề tỉ mỉ đến từng chi tiết, cùng các kỹ sư cơ điện và đội ngũ giám sát giàu kinh nghiệm. Sự chính xác trong thi công giúp không gian thực tế bám sát hoàn toàn so với bản vẽ.
- Bước 5: Kiểm soát chất lượng và bàn giao: Điểm tự hào của Deco Crystal là mọi công đoạn từ thiết kế đến thi công đều được kiểm soát vô cùng chặt chẽ. Nhờ đó, công ty có thể đưa ra cam kết tuyệt đối về chất lượng hoàn hảo và tuân thủ nghiêm ngặt tiến độ bàn giao, đem lại lợi ích hài hòa và sự an tâm tối đa cho khách hàng

Báo giá dịch vụ thiết kế nội thất tại Crystal Design
Crystal Design cung cấp bảng giá khung dưới đây để quý khách hàng có thể ước tính ngân sách sơ bộ ban đầu. Đơn giá chính thức sẽ được điều chỉnh và xác định chi tiết dựa trên các yêu cầu cụ thể của từng dự án.
|
Hạng mục |
Đơn giá (VNĐ/m²) |
|
Văn phòng |
300.000 – 500.000 |
|
Showroom |
200.000 – 350.000 |
|
Spa |
200.000 – 350.000 |
|
Nhà hàng |
200.000 – 300.000 |
|
Tư vấn thiết kế |
Miễn phí |
Lưu ý:
- Mức giá trên chỉ là mức tham khảo. Đơn giá cuối cùng sẽ được tính toán dựa trên các yếu tố đặc thù của dự án như: tổng diện tích, hiện trạng mặt bằng, phong cách thiết kế, mức độ phức tạp của chi tiết nội thất và các yêu cầu riêng từ khách hàng.
- Để nhận được báo giá dịch vụ chính xác và phù hợp nhất, xin vui lòng liên hệ trực tiếp với Deco Crystal.
Thiết kế văn phòng 50m² có khả năng nâng tầm một không gian làm việc từ mức độ thông thường lên chuẩn mực chuyên nghiệp, thẩm mỹ và hiệu suất vượt trội, miễn là việc quy hoạch và thiết kế được thực hiện một cách bài bản. Yếu tố quyết định không nằm ở diện tích mặt bằng mà ở cách thức tối ưu hóa từng mét vuông để phục vụ mục tiêu kinh doanh và thúc đẩy năng suất làm việc của đội ngũ nhân sự
Deco Crystal đã và đang đồng hành cùng hàng nghìn doanh nghiệp trong hành trình chuyển đổi những mặt bằng thô thành không gian làm việc truyền cảm hứng, đáng tự hào. Chúng tôi cam kết không áp dụng các mẫu thiết kế sẵn có, mà tập trung lắng nghe, phân tích chuyên sâu và kiến tạo giải pháp độc bản, phù hợp với đặc thù riêng của từng dự án.
|
Liên hệ Crystal Design TPL
|
