
Đặng Trường Minh là một trong những cái tên rất quen thuộc và gần gũi trong làng thiết kế và xây dựng tại Việt Nam, đặc biệt là tại Crystal Design – TPL. Trong những năm làm việc tại Crystal Design – TPL, Đặng Trường Minh luôn không ngừng nỗ lực mang đến các dự án thiết kế chất lượng, đáp ứng nhu cầu của các khách hàng doanh nghiệp lớn nhỏ trong khắp cả nước
Thông tin cá nhân
- Họ tên: Đặng Trường Minh
- Ngày, tháng, năm sinh: 11/07/1984
- Quê quán: Thừa Thiên Huế
- Địa chỉ hiện tại: Thành phố Thủ Đức
- Số điện thoại: 0907950200
- Email: minharch.dang@gmail.com
- Nghề nghiệp: Kỹ sư, kiến trúc công trình
- Skype: minharchitect
Tiểu sử
2002: Học tại trường Đại Học Kiến Trúc TP HCM
Sứ mệnh
Là một trong những kiến trúc sư tài ba với hơn 15 năm kinh nghiệm trong lĩnh vực thiết kế, xây dựng văn phòng, tài chính, cửa hàng bán lẻ của các công ty lớn toàn cầu, Kiến Trúc Sư Đặng Trường Minh luôn đảm bảo các sứ mệnh thiêng liêng của mình Đó chính là việc luôn vạch ra các kế hoạch, hướng đi để có thể dẫn dắt đội ngũ kiến trúc sư chinh phục được các dự án khó, dự án nhiều yêu cầu kỹ thuật. Đồng thời, cũng luôn đảm bảo cho các công trình được thiết kế, xây dựng đẹp, phù hợp với xu hướng thị trường nhưng vẫn đảm bảo được tính an toàn tuyệt đối cho người sử dụng Kiến Trúc sư Đặng Trường Minh cũng không ngừng thực hiện, chấp nhận thử thách mới mỗi ngày để cập nhật các tiến độ, các xu hướng phong cách nội thất mới của những dự án
Mục tiêu trong đời
Là một trong những nhà kiến trúc sư nổi tiếng, kiến trúc sư Đặng Trường Minh luôn đặt ra những mục tiêu quan trọng cho mình, đó là:
- Đem đến nhiều giá trị cho dự án của khách hàng, giúp cho mẫu thiết kế văn phòng hiện đại, thời thượng hơn nhưng vẫn đảm bảo tối ưu hóa được chi phí
- Đưa công ty Crystal Design – TPL trở thành một trong những công ty thiết kế nội thất, thi công nội thất văn phòng hàng đầu tại Việt Nam. Trở thành nơi mà khách hàng nghĩ đến đầu tiên khi cần thi công nội thất, xây dựng
- Trở thành nguồn cảm hứng đối với lĩnh vực thiết kế, xây dựng cho các bạn trẻ, giúp cho các bạn trẻ khác dám thử sức cũng như dám nỗ lực để tạo nên các dự án thành công cho mình
Giá trị hướng đến
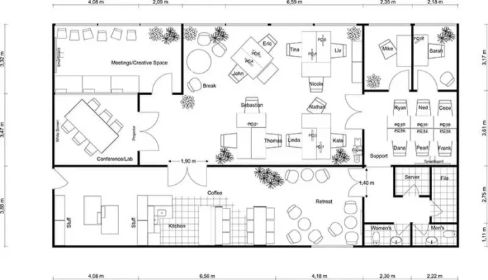
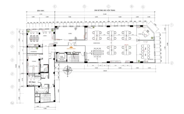
Hướng đến các giá trị chân thiện mỹ khi thực hiện thiết kế các bản vẽ xây dựng nhà ở, tiêu chuẩn thiết kế văn phòng, tiêu chuẩn thiết kế phòng họp công ty tài chính hay các cửa hàng bán lẻ hàng đầu khu vực. Luôn suy nghĩ lạc quan, luôn tích cực và khát khao hoàn thiện các công trình kiến trúc xây dựng khó, những công trình đòi hỏi có sự sáng tạo, sự đột phá và các chi tiết mới mẻ trong quá trình thực thi Để cho khách hàng luôn an tâm và hài lòng với các bản vẽ thiết kế của mình, anh Đặng Trường Minh luôn chú ý đến từng chi tiết nhỏ trong bản thiết kế, nhằm đảm bảo cho bản thiết kế trở nên hoàn hảo hơn, chi tiết hơn và phù hợp với tổng thể xu hướng của thị trường Ngoài những kinh nghiệm, sự nỗ lực cống hiến không ngừng thì anh Đặng Trường Minh còn luôn cố gắng học hỏi, trau dồi không ngừng để có thể đảm bảo mang đến những công trình thiết kế hoàn hảo nhất, phù hợp nhất với thị trường. Góp phần giúp cho thương hiệu Crystal Design – TPL được nhiều khách hàng biết đến và tin tưởng hơn. Sẽ luôn trở thành một địa chỉ uy tín, là nơi mà khách hàng sẽ chọn lựa đầu tiên khi có nhu cầu thuê thiết kế hay xây dựng các công trình.









